De 2 sider og bunden er formglatte, mens opsiden er finpudset eller glittet. Længderne er derfor kun begrænset af praktiske hensyn som løfte- og transporthensyn.
Runde søjler støbes stående, normalt i stålforme der består af to halvdele. Der vil derfor kunne forekomme langsgående spor efter forskallingerne. Af praktiske grunde er der grænser for hvor høje forme der kan anvendes, og søjler i et stykke kan derfor højst fremstilles i bestemte længder. Pt. er max længden 5,3 meter.
Til indspænding af søjlerne kan Spæncoms præfabrikerede A-fundamenter ofte anvendes, hvilket også giver hurtigere montage.
I linkene til højre vil du finde mere detaljerede tekniske oplysninger om vores søjler.
Til højre har du mulighed for at downloade tværsnittene for firkantede og runde søjler - både som dwg og som pdf.
Til højre har du mulighed for at downloade de samlingsdetaljer, hvor der indgår søjler og RB bjælker - både som dwg og som pdf.
Samlingerne angiver generelle principper, og Spæncom påtager sig ingen ansvar for den projektspecifikke anvendelse af samlingen.
Til højre har du mulighed for at downloade de samlingsdetaljer, hvor der indgår søjler og KB/KBE bjælker - både som dwg og som pdf.
Samlingerne angiver generelle principper, og Spæncom påtager sig ingen ansvar for den projektspecifikke anvendelse af samlingen.
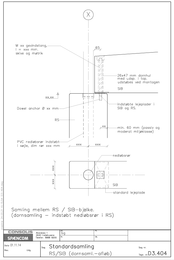
Til højre har du mulighed for at downloade de samlingsdetaljer, hvor der indgår søjler og SIB bjælker - både som dwg og som pdf.
Samlingerne angiver generelle principper, og Spæncom påtager sig ingen ansvar for den projektspecifikke anvendelse af samlingen.
Til højre har du mulighed for at downloade de samlingsdetaljer, hvor der indgår søjler og fundamenter - både som dwg og som pdf.
Samlingerne angiver generelle principper, og Spæncom påtager sig ingen ansvar for den projektspecifikke anvendelse af samlingen.
På vores BIM side har du mulighed for at downloade BIM modeller af firkantede og runde søjler - som rfa filer.
Afkald af betonelementer sker via vores kørselsafdeling. Elementer afkaldes i rækkefølge 3 uger før ønsket levering. Dette afkald bekræftes endeligt 5 hverdage før inden kl. 10. For yderligere information henvises til "Spæncoms salgs- og leveringsbetingelser".
Afkald af elementer