Spæncom betonvægge er massive pladeelementer, du kan anvende i alle former for byggeri - både som bærende og ikke-bærende konstruktioner. De er meget robuste og lette at vedligeholde. Desuden er de lydisolerende og har gode varme- og kuldeakkumulerende egenskaber.
Vendbare vægge kan leveres i enhver længde og er kun begrænset af stabiliteten og maksimalvægten på 32 ton. Ikke-vendbare vægge leveres i højde op til 4200 mm.
Væggene kan leveres enten med skarpe sidekanter eller med affasning. Top og bund på væggene udføres uden affasning.
Spæncom vægge er massive vægelementer, der anvendes som bærende eller ikke-bærende konstruktion i alle former for byggeri. Vægelementer kan leveres med istøbte murbindere for skalmuring.
Vægge støbes i vandrette former, således en side bliver formglat, mens den anden side udføres glittet.
Til højre har du mulighed for at downloade de samlingsdetaljer, hvor der indgår vægge og TTS elementer - både som dwg og som pdf.
Samlingerne angiver generelle principper, og Spæncom påtager sig ingen ansvar for den projektspecifikke anvendelse af samlingen.
Til højre har du mulighed for at downloade de samlingsdetaljer, hvor der indgår vægge og huldæk - både som dwg og som pdf.
Samlingerne angiver generelle principper, og Spæncom påtager sig ingen ansvar for den projektspecifikke anvendelse af samlingen.
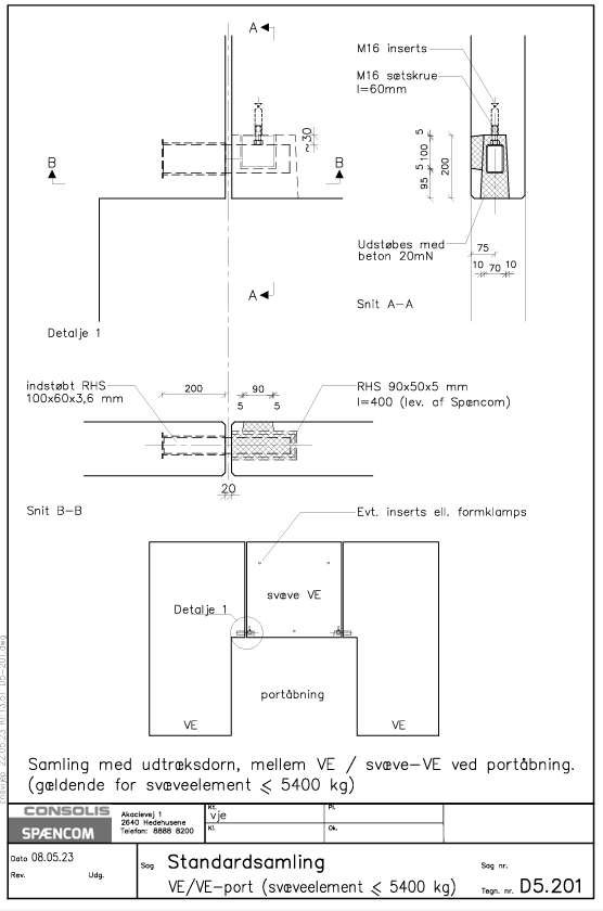
Til højre har du mulighed for at downloade de samlingsdetaljer, hvor der indgår vægge og svæveelement eller fugesamling - både som dwg og som pdf.
Samlingerne angiver generelle principper, og Spæncom påtager sig ingen ansvar for den projektspecifikke anvendelse af samlingen.
Afkald af betonelementer sker via vores kørselsafdeling. Elementer afkaldes i rækkefølge 3 uger før ønsket levering. Dette afkald bekræftes endeligt 5 hverdage før inden kl. 10. For yderligere information henvises til "Spæncoms salgs- og leveringsbetingelser".
Afkald af elementer